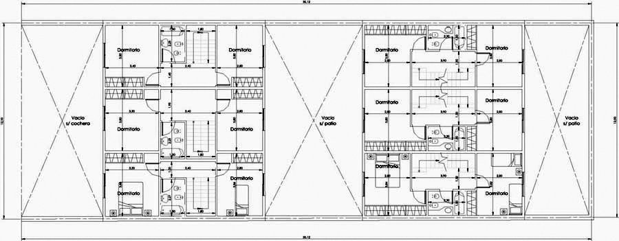
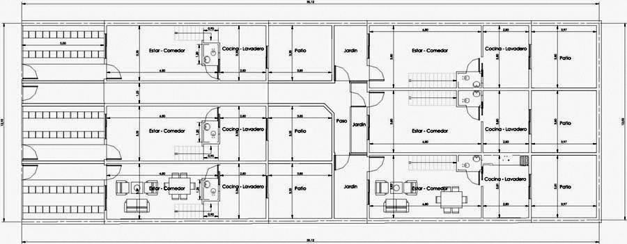
Espacio formado por 6 unidades de 3 ambientes, cada una consta de planta baja con patio privado, primer piso y terraza accesible propia.

Poseen cocheras individuales las viviendas ubicadas al frente.