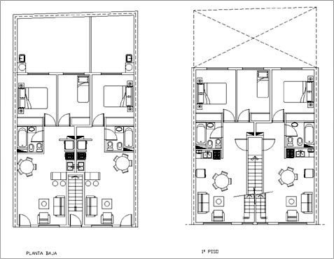
Conjunto de 4 unidades, en planta baja una unidad de 2 ambientes y otra 3 ambientes con patio propio, lo mismo en planta alta pero con terraza accesible privada.