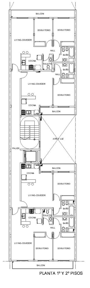
Complejo 2 y 3 ambientes con balcón aterrazado y 2 semipisos de 4 ambientes con terraza propia y parrilla. Con Cocheras.
Excelente terminación en yeso, Pisos de Porcelanato, Mesadas de Mármol y Piso Flotante.