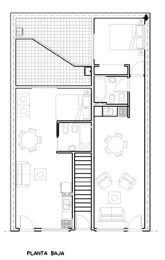
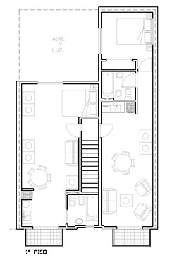
2 monoambientes amplios y 2 departamentos de 2ambientes. En planta baja cada departamento posee patio.
Excelente terminaciones, pisos de porcelanato y piso flotante en dormitorios, mesada de mármol en cocina.