Empresa
Proyectos Realizados
Contacto
LARSEN
100
Cerrado
Info del Proyecto
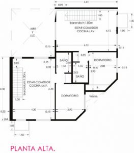
4 departamentos de 2 ambientes.
2 en planta baja con patio propio, 2 en primer piso por escalera.
Tipologías
Ubicación
100
Cerrado