Enviar WhatsApp

Edificio de Viviendas y Oficina, ubicado en un lugar estratégico frente a Plaza Italia, en el Centro de Campana.



100

Cerrado

Info del Proyecto

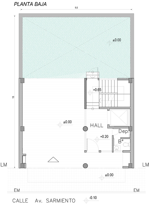
El Edificio MENHIR DE SARMIENTO se encuentra en etapa de Construcción, está Compuesto por 7 Pisos con estructura tradicional y detalles de categoría. Se ingresa desde el Boulevard Sarmiento, en la Planta Baja se encuentra el Estacionamiento techado y el Hall de Ingreso al bloque de escalera y el ascensor que distribuye a los pisos superiores.

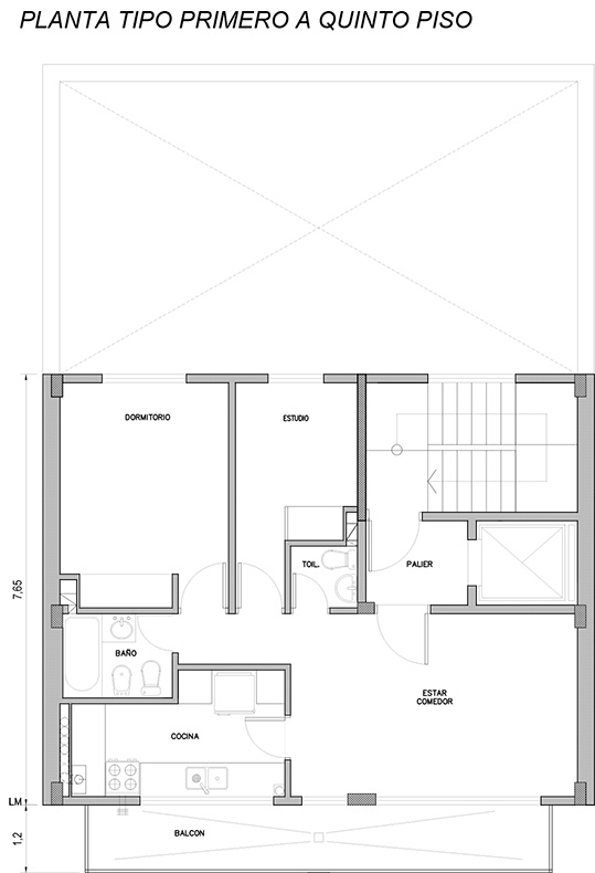
Está compuesto por 5 Departamentos de 2 dormitorios, con pisos exclusivos, entre el 1er y el 5to Piso y están diseñados especialmente para aquellos que buscan un lugar de confort para vivir.

Los departamentos cuentan con 66m2 construidos, 2 dormitorios, 1 baño completo, 1 toilette, Cocina, Living - Comedor incorporado y un amplio Balcón con excelentes y amplias visuales a la Plaza Italia.

Se dispone además de 1 Planta de Oficina ubicada en el 6to Piso y sobre esta la Planta de Azotea de uso común.

Tipologías

Planta Baja, Planta Tipo del 1ro al 5to Piso y Oficina en 6to.

Info Técnica

- Aberturas de Alta Prestación DVH

- Sanitarios con Artefactos y Griferías de primera Calidad

- Porcellanatos de primera calidad



Ubicación

Se encuentra frente a Plaza Italia, en el Centro de Campana.

Contactanos

¿Estás listo para comenzar tu proyecto? Envíanos un mensaje y nos pondremos en contacto lo antes posible.